KIẾN TRÚC NHÀ PHAN THIẾT
- Thiết kế nhà cấp 4; Nhà phố; Nhà cao tầng; Biệt thự; Thiết kế nội thất; Thi công xây dựng trọn gói; Nhận thầu phần thô xây dựng; Nhận thầu nhân công trọn gói;
- Thiết kế nhà giá rẻ Phan Thiết; Thiết kế nhà đẹp giá rẻ Phan Thiết; Thi công xây dựng giá rẻ Phan Thiết; Nhận thầu xây dựng giá rẻ Phan Thiết.
Đoàn Anh Quốc xin giới thiệu tới mẫu thiết kế nhà phố 2 tầng chữ 6x14m tại Phan Thiết.
KIẾN TRÚC MÁI THÁI PHỐ HIỆN ĐẠI
-
Chủ đầu tư: chị Thảo
-
Địa điểm xây dựng: Phường Phú Thủy
Thiết kế nhà phố 2 tầng mái xéo mái lợp hiện đại tại Phan Thiết hot nhất năm 2021- MS29.


Mẫu nhà phố 2 tầng mái xéo mái lợp tại Phan Thiết với kiến trúc mái lệch hiện đại phù hợp cho các gia đình trẻ thích phong cách trẻ trung và năng động.Được xây dựng trên lô đất 6x14 khá rộng với cách bố trí thông minh của Kiến trúc sư đã tận dụng được hết những chi tiết nhỏ để tạo nên ngôi nhà đúng như ý tưởng và mong muốn của gia chủ, nhà phố 2 tầng hiện đại được bố trí đầy đủ công năng và các phòng đều thoáng sáng đối lưu không khí hợp lý.

Thiết kế nhà mái xéo mái lợp được xem là kiểu nhà cách tân mới nhất hiện nay là một trong những thiết kế đẹp thường được lựa chọn để xây dựng nhà Phan Thiết. Vật liệu hoàn thiện cho nhà cũng không có gì cao cấp để tiết giảm chi phí cho công trình , chủ đạo vẫn là sơn tường màu trắng kết hợp với xám nhẹ , xung quanh là gạch inax chạy viền dọc theo phần ngoại thất.
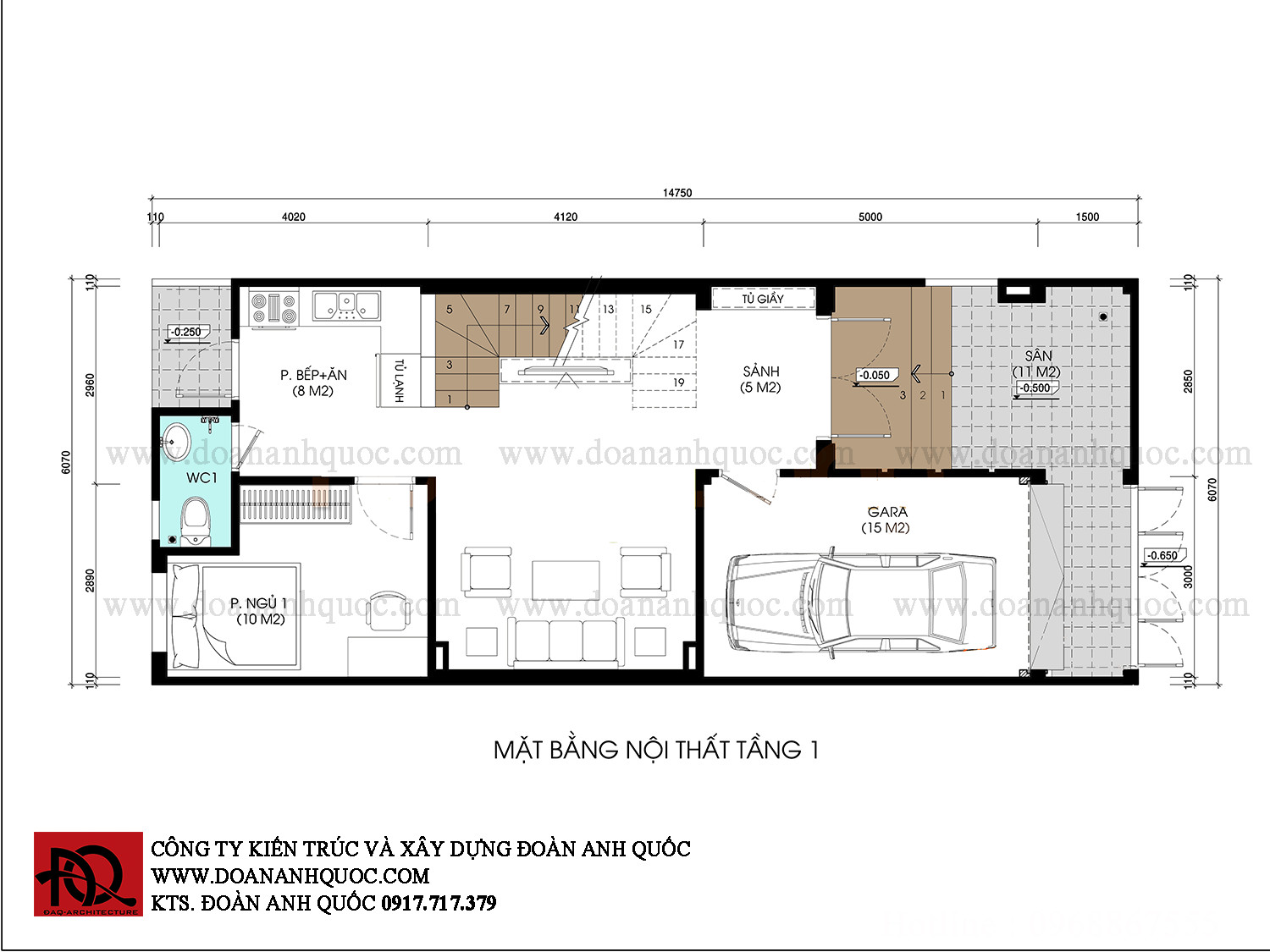
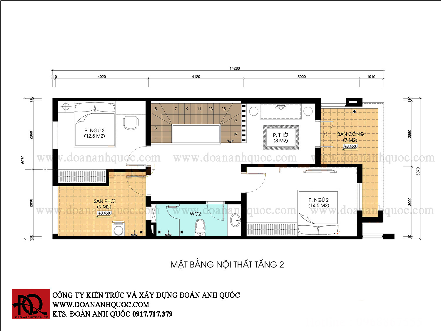
Công năng của nhà được bố trí một cách hợp lý :

Tầng 1 : sân trước , sảnh và bậc tam cấp , có gara đậu ô tô, Phòng khách , phòng bếp + ăn , phòng ngủ 1 WC riêng.

Tầng 2 : sảnh tầng, phòng ngủ 2+3, WC 2, sân phơi , phòng thờ và ban công.

Phối cảnh từ cao chúng ta sẽ thấy góc view mẫu nhà 2 tầng mái xéo 6x14 này chính là một thiết kế độc lạ mái xéo mái lợp mà kiến trúc sư đã tạo cho ngôi nhà có thêm điểm nhấn nhá.
Mẫu thiết kế nhà Phan Thiết hot nhất hiện nay
Điểm đặc biệt là phong cách ngôi nhà khá nổi bật nói lên tính cách của gia chủ rất thích những sự độc lạ , phá cách và có gu thẩm mỹ cao. Gạch ốp bồn bông ở phía trước ban công là một mảng màu xanh của cây cối làm tăng thêm điểm ở kiến trúc ngoại thất ngôi nhà.

Toàn bộ cửa chính và cửa sổ tất cả đều được sử dụng loại cửa nhôm xinfa kính cường lực nhằm tạo nên ánh sáng tự nhiên cho nội thất bên trong căn nhà.Phần ban công đưa ra ngoài kết hợp kính cường lực và vài bóng đèn chiếu ra sân một thiết kế đơn giản không quá cầu kì hay phức tạp nhưng tổng thể tạo nên nét hoàn hảo riêng của thiết kế nhà Phan Thiết.
CÔNG TY TNHH KIẾN TRÚC - XÂY DỰNG ĐOÀN ANH QUỐC
-
F38 VÕ VĂN KIỆT , P.PHÚ THỦY, PHAN THIẾT , BÌNH THUẬN
-
0252.3739.734 – 0917.71.73.79